Piso en Chamartín
Se vende magnífico dúplex de lujo, en edificio de reciente construcción, con piscina infinita en la azotea, solárium y gimnasio.
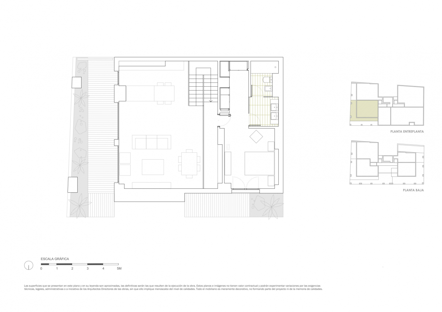
La vivienda se distribuye en 2 plantas, planta inferior con hall de entrada, salón, baño completo, habitación, cocina y terraza. Planta superior con despacho (posibilidad de hacer una 3ª habitación) y habitación principal con baño en suite.
Cocina totalmente amueblada con encimera de DEKTON (equipada con electrodomésticos de alta gama). Gran cantidad y capacidad de armarios empotrados totalmente vestidos.
Dos terrazas con un total de 46 m2.
La vivienda es muy luminosa, con doble altura y grandes ventanales.
Puerta acorazada, persianas de seguridad motorizadas en terrazas, alarma, bomba de frio y calor, calefacción por suelo radiante. Incluye domótica de última generación, trastero y dos plazas de garaje. No está incluido el mobiliario en el precio.
Zona de Paseo de la Habana, próximo al estadio Santiago Bernabéu.
¿Le interesa esta casa?
Llámenos o escríbanos
Ambassador Madrid
serrano@ambassador.es
91 300 50 50
Más fotografías del inmueble













